Ok, might need to troubleshoot, but wondering if your Fuses in the fusebox, aren't seated properly.
Why?
Well, Light switch, when off - Wipers work fine, Lights on - Parks in the middle of your windshield.
Ok, to go a little further into this, the Wiper Motor - should have a switch contact that when the wipers are originally parked, engage - but when you apply power, the wiper motor "wakes up" pulls itself from the switch that engages a set of contacts, to disengage that switch - this is thru a separate wire in the harness going to it - it's live when the wipers are on, to tell the motor to move from park. Once the wipers are operational - the BCM (Body Control Module) handles all the fun.
When that switch is damaged, or the wiring harness has a short somewhere and they had to replace fuses, if the wire harness itself has a burnt section, a carbon trail can form and eventually can cause a short - thru vibration and the wires finally making contact together.
This is where the fuses come in, look for "different package style" or ratings (used a bigger fuse for example - the color would be different) than the OEM - this may indicate previous damage done that you will need to investigate. Don't be a bit surprised to see if Fuses from one area taken out of one Fuse Box location and reused elsewhere and you're left to figure out the rest of this puzzle.
Otherwise, the Wiper motor is suspect has having a bad wire or switch to "park" itself - it may not fully engage (transfer to another) a set of contacts to tell the system it is fully parked - it uses these contacts to allow the Motor to receive a wakeup call and move. IF the wire is open, the motor doesn't receive enough energy to park (run thru and seat the wipers) in which the switch - once it engages, tells the RELAY for the wipers, I'm parked - thanks you can turn off now - which then the Relay powers down and it's done until next time. Instead, it parks itself...at it's default position which would be in-between the set of contacts - the wiper power duration the BCM is to supply - has run out - so has it's power to move - so stops dead in it's tracks...
This goes back to those Fuses again, for loose fuses can cause surges, intermittent operation stuff - acting as if - Steven Spielberg used the vehicle as a "stunt Double" is a Poltergeist reboot.
Or, Wiper switch that goes to the BCM, is faulty and needs someone to delve under the Steering Wheel covers and look for nicked wires.
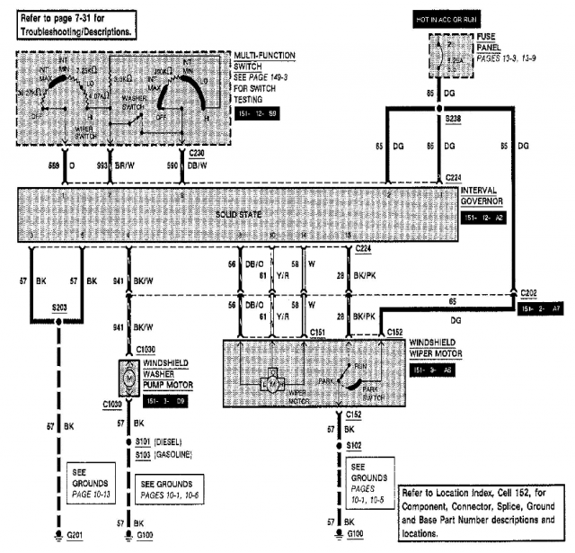
Below, is not a true representation of your Wiper Motor, but used in the description above to help you understand the Motor wiring and the switch, also how the motor itself has a series of contacts - one of them REVERSES the motor to force the gearing to "Park" the arms - and also reset the motor to allow it to start in the correct direction when they are turned back on.

Hope this helps..